DOMus f&F
Quando: 2022
Dove: Roma
Metri: 160 mq
Foto: Francesca Maiolino
DOMus F&F è un progetto d’architettura d’interni situata a Roma nord vicino a uno dei polmoni verdi della città. La sua bellezza senza tempo si percepisce dai pavimenti in legno, dalle cornici e dai soffitti alti, che le conferiscono un carattere speciale.
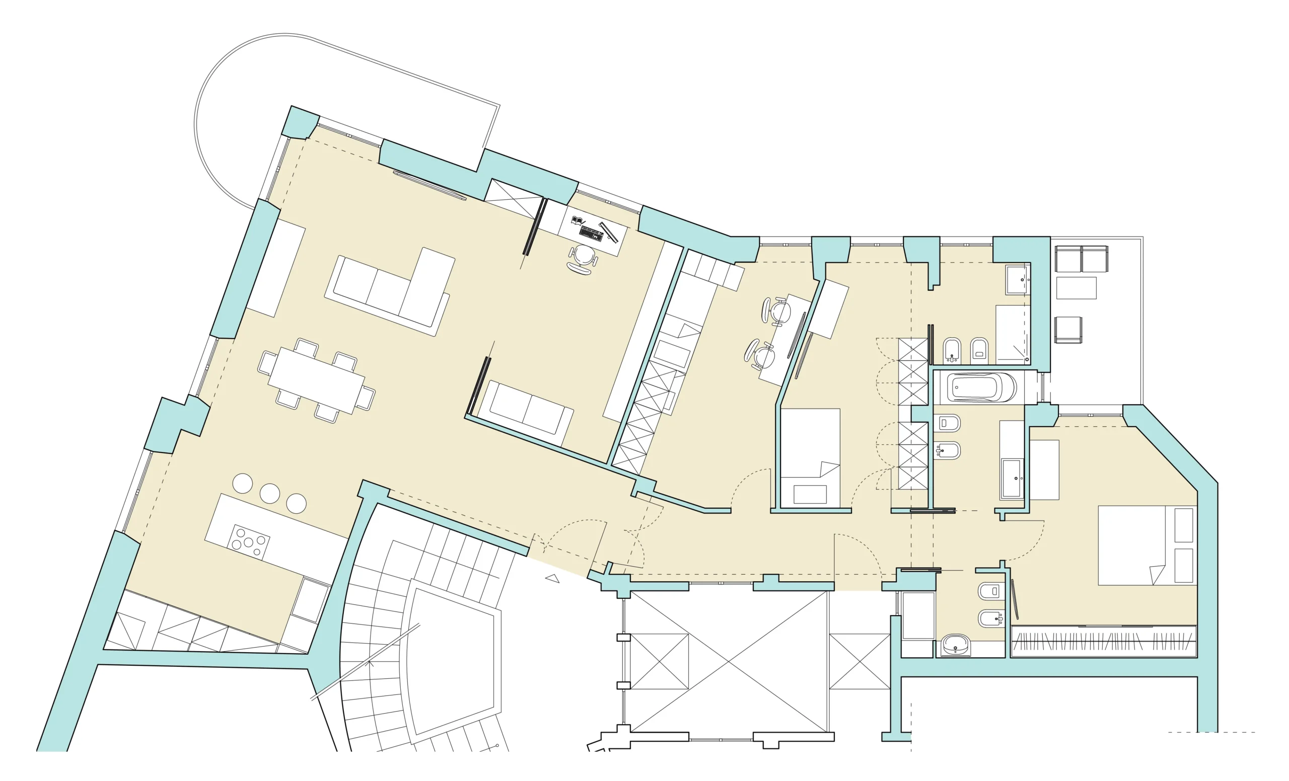
Domus F&F
prima e dopo
L’intervento di ristrutturazione ha diviso gli spazi tra zona giorno e zona notte, creando un ambiente più funzionale e adatto alle esigenze di una famiglia con due bambini e la nonna.
La cucina è diventata il cuore della zona living, aperta e versatile, con la possibilità di separare le funzioni grazie a quinte vetrate. Nella zona notte, invece, è stata creata una terza camera con bagno dedicato per la nonna, offrendo comfort e privacy.
Per mantenere il fascino originale della casa, sono stati scelti pavimenti in parquet a spina italiana in tutti gli ambienti, mentre in cucina e nei bagni sono stati posati gres. Sono state anche inserite boiserie e cornici che arricchiscono gli spazi. L’arredamento combina uno stile contemporaneo con alcuni pezzi speciali appartenuti alla nonna, creando un’atmosfera calda e accogliente.















